5040 NW 7TH ST, MIAMI, FL 33126

  • MLS# A11387860
  • Lease Price: $21 NNN
  • Available Units:
  • Suite 500 2,976 SF
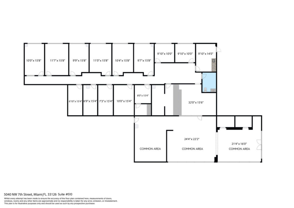
  • Suite 510 3,853 SF
  • Suite 680 1,363 SF
  • Suite 800 3,509 SF
  • Max Contiguous: 6,829 SF

Elegantly renovated medical and professional office building in the heart of Miami.  Strategically located in close proximity to all major highways, Miami International Airport, Coral Gables, providing easy access from anywhere in the county and excellent exposure to busy NW 7th Street.  Property boasts a stylish and sophisticated lobby, large medical and executive offices with impressive views and plenty of ambient light.  Available units specs: Suite 500 – 2,976 SF, Suite 510 – 3,853 SF (Units may be combined for a continuous 6,829 SF) and Suite 680 – 1,363 SF.  Building provides maximum visibility to over 40,000 daily vehicles in an exceptional medical submarket with over 150 physician groups within a 3-miles radius and 7 hospitals within a 25-minute drive. On-site and valet parking available. Prime location!

SHARE THIS PAGE: